제주 더아란치움 고급 타운하우스 선착순 분양 서홍동 고급 주택
도심 속 자연, 프리미엄 주거공간 더 아란치움’의 매력 도시의 빠르고 복잡한 일상 속에서 많은 이들이 더 나은 삶의 질과 편안한 주거환경을 찾고 있습니다. 바로 그 해답이 되는 곳, 더 아란치움은 자연과의 조화, 최첨단 스마트 홈 시스템, 그리고 최고급 편의시설로 차별화된 고급 타운하우스를 제공합니다. 이곳에서 오렌지 나무 아래서 새로운 시작을 맞이하고 삶의 가치를 더욱 높일 수 있습니다.


성공의 상징, 오렌지 나무와 함께하는 삶
성공의 문을 열고 나아가 도착한 곳에서 마주한 오렌지 나무는 더 아란치움의 상징적인 요소입니다. 이 나무는 단순한 식물 그 이상의 의미를 가집니다. 오렌지 나무는 풍요로움과 행복을 상징하며, 더 아란치움 입주민에게는 매일매일의 영감을 선사합니다. 이곳에서 느끼는 안식과 평온은 성공적인 삶을 살아가는 이들에게 그 이상의 의미를 부여합니다.

도심 속 자연과 함께하는 프리미엄 주거 환경
더 아란치움은 도심 속에서 자연을 마음껏 누릴 수 있는 주거단지입니다. 자연과 건축의 완벽한 조화를 이루어낸 그린 건축(Green Architecture) 철학을 기반으로, 제주의 자연을 그대로 담아낸 숲공원과 산책로가 있습니다. 이곳은 입주민들만을 위한 특별한 공간으로, 사계절 내내 자연의 변화를 오롯이 느끼며 마음의 평온을 누릴 수 있습니다.

더 아란치움 단지 내 300평 규모의 숲공원에서는 봄에는 감귤 꽃의 향기를, 여름에는 시원한 바람을, 가을에는 황금빛 단풍과 석양을, 겨울에는 눈꽃 속에서의 추억을 만들어갈 수 있습니다. 이 모든 요소는 더 아란치움 입주민들에게 진정한 힐링과 휴식을 제공합니다.



더 아란치움 사업개요
더 아란치움은 자연녹지지역에 위치하여, 총 대지면적 16,996.00㎡(5,141.29평) 중 유효 면적은 9,163.00㎡(2,771.80평)입니다. 단지는 지상 2층 구조로 6세대의 단독주택과 제1종 근린생활시설로 구성되어 있으며, 총 주차대수는 31대로 법정 기준 보다 여유롭습니다. 건폐율 13.70%, 용적률 20.28%로 법정 기준을 충족하며, 조경면적은 917.00㎡(277.39평)로 단지 내 녹지공간을 확보하고 있습니다.


내부 디자인
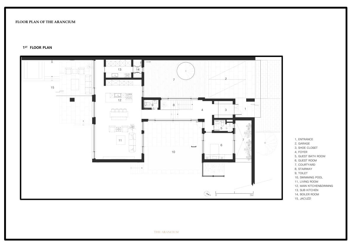
1층 공간 구성
더 아란차움의 내부 디자인은 가족 구성원의 생활과 감성을 배려하여 설계되었습니다. 1층에는 1개, 거실 , 주방, 수영장, 실내 정원이 위치하고 있습니다.
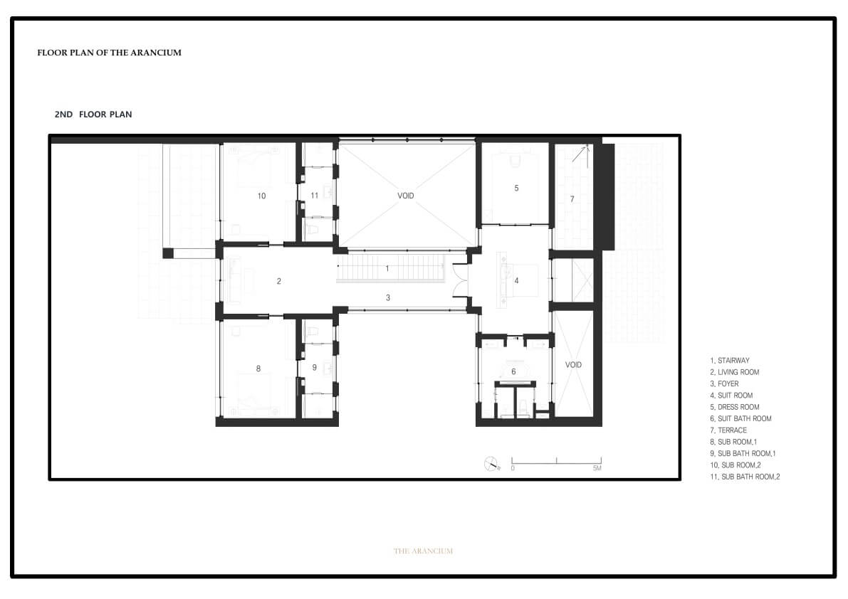
2층 공간 구성
2층에는 마스터룸, 멀티룸, 드레스룸, 홈바, 홈시어티가 마련되어 있습니다. 높은 천장고와 넓은 창호를 통해 풍부한 자연채광을 확보하고, 블랙 &하이트 컨셉의 모던한 디자인을 구현하였습니다.












지속 가능한 스마트 건축의 미래
더 아란치움은 단순히 현재의 편리함을 제공하는 것에 그치지 않고, 지속 가능한 건축 철학을 바탕으로 미래까지 고려한 **스마트 건축(Smart Architecture)**을 선도하고 있습니다. 최첨단 스마트 홈 네트워크 시스템을 갖춘 이곳은 쾌적하고 건강한 주거 환경을 유지할 수 있도록 설계되었습니다. 자동 환기 및 공기 정화 시스템을 통해 실내 공기는 언제나 깨끗하게 유지되며, 창문을 열지 않고도 공기를 상쾌하게 환기할 수 있습니다.
또한, 고급 보안 시스템과 24시간 상시 관리되는 보안 시설을 통해 안전한 주거환경을 보장합니다. 이러한 스마트 홈 시스템은 더 아란치움의 가치와 주택의 수명을 길게 유지하는 핵심 요소로 작용합니다.







럭셔리와 편안함의 극치, 고급 커뮤니티와 컨시어지 서비스 더 아란치움은 고급 타운하우스의 진수를 보여주는 다양한 특급 커뮤니티 시설을 자랑합니다. 입주민들을 위해 마련된 헬스케어 센터에서는 피트니스 클럽과 스크린 골프장을 이용할 수 있으며, 조식 서비스가 제공되는 다이닝 라운지에서는 호텔급 편의를 누릴 수 있습니다.
특별한 혜택
더 아란치움은 입주민에게 다양한 특별 혜택을 재공합니다.
- 2년 무료 조식 서비스
- 5년간 무상 하자보수 보증
- 외부 창호 청소와 냉.난방기. 공기청정기 필터 교환 3회
- 무상 제공 24시간 경비 무상지원
- 월 1회 무상 스팀세차 서비스
- 대형 밴 에스코트 서비스
- 최소 관리비 운영 시스템
비즈니스 라운지에서는 미팅 및 업무를 편리하게 처리할 수 있고, 각종 컨시어지 서비스를 담당하는 데스크와 24시간 보안실이 있어 언제나 안전하고 편리한 생활이 가능합니다. 여기에 더해, 공항과 골프장, 등하교 에스코트 서비스까지 제공하는 하이엔드 컨시어지 시스템은 바쁜 도시 생활 속에서도 여유롭고 특별한 일상을 선사합니다.



최고급 마감재와 세심한 디자인의 결합
더 아란치움은 최고급 친환경 건축 자재와 현대적인 디자인이 결합된 고품격 주거공간입니다. 이곳의 모든 마감재는 친환경적인 소재를 사용하며, 품질과 내구성에서 타의 추종을 불허합니다.
이탈리아 명품 가구 브랜드 Molteni & C와 Dada RATIO의 빌트인 가구 시스템은 세련되고 우아한 디자인으로, 실용적이면서도 아름다운 주거공간을 완성합니다. 특히, 고급스러운 마스터 드레스룸과 하이엔드 주방가구는 실용성과 고급스러움을 동시에 추구하는 현대인들에게 이상적인 공간을 제공합니다.
자연 속에서 누리는 예술과 휴식
더 아란치움 단지 내에는 **아트 뮤지엄 파크(Art Museum Park)**와 갤러리 카페가 함께 조성되어 있습니다. 입주민들은 갤러리 카페에서 예술작품을 감상하며 차 한 잔의 여유를 즐길 수 있습니다. 다양한 전시와 작가들의 작품 세계를 산책하듯 둘러볼 수 있는 공간은 일상 속에서 소소한 행복과 여유를 누릴 수 있는 특별한 경험을 제공합니다.
또한, 갤러리 카페에서 제공하는 모든 식음료는 입주민들에게 무상으로 제공되며, 문화와 예술을 통한 소통의 장을 마련해줍니다. 이곳에서 자연과 함께하는 감성 힐링 라이프를 만끽할 수 있습니다.
철저한 관리 시스템으로 유지되는 품격
더 아란치움의 시설은 365일 관리 유지보수 시스템을 통해 언제나 최상의 상태로 유지됩니다. 단지 내 전문 기술 인력이 정기적으로 건물 및 시설을 점검하고 유지보수를 철저히 진행하며, 이를 통해 주택의 가치를 오랜 시간 동안 유지할 수 있습니다.
외부 창호 청소 서비스, 냉난방기와 공기청정기의 정기적인 점검 및 필터 교체 서비스, 방충 및 방진 서비스 등 다양한 하우스 키핑 서비스가 제공되며, 입주민들은 쾌적하고 안전한 생활을 보장받습니다.
더 아란치움의 고급 커뮤니티 시설
입주민 전용 커뮤니티센터에는 풀사이드 라운지 카페, 조식 서비스 레스토랑, 25m 온수풀 수영장, 무인편의점, 야외 테라스, 스크린 실내 골프연습장, 휘트니스 센터, 300평 규모의 숲공원(Forest Park)등이 마련되어 있어 고급 주거생활을 제공합니다. 입주민과의 협의를 통해 추가적으로 필요한시설도 완비할 예정입니다.
더 아란치움에서 시작되는 새로운 차원의 삶
더 아란치움은 단순한 주거 공간 그 이상의 가치를 제공합니다. 도시의 복잡함에서 벗어나 자연과 함께하는 평온한 삶을 누릴 수 있는 이곳은 현대적인 편리함과 예술적인 감각이 어우러진 고급 주거지입니다. 도심 속에서도 자연과 함께하는 삶을 꿈꾼다면, 더 아란치움에서 새로운 차원의 삶을 시작해보세요.
더 아란치움은 고품격 타운하우스의 새로운 기준을 제시합니다. 이곳에서 누리는 삶은 단순한 주거 그 이상이며, 도심 속에서 자연과 예술, 그리고 현대적 편리함을 모두 경험할 수 있습니다. 지금 바로 더 아란치움의 문을 열고, 그 안에 숨겨진 럭셔리한 생활을 만나보세요.
100% 사전예약제로 운영하고 있습니다. 상담 및 방문계획이 있으신분은 아래 번호로 연락주시면 상담 및 방문예약을 해드립니다. 많은 관심과 문의 부탁드립니다. 감사합니다.
상담 예약 010-7683-1788
'정보 게시판 > 부동산 정보' 카테고리의 다른 글
| 함덕 엘크루 더 퍼스트 제주도 신축 아파트 분양 (0) | 2024.10.15 |
|---|---|
| 제주 아일랜드힐 2차 1세대 1억원 할인 특별 분양 즉시입주가능 (0) | 2024.10.13 |
| 대전 10년 민간임대 삼성동 아르떼 아파트 분양 (0) | 2024.10.06 |
| 월드메르디앙 송도 미분양 할인 아파트 송도 1공구 인천 신축 아파트 즉시 입주 가능 (0) | 2024.10.05 |
| 제주 포스힐 프레스티지 타운하우스 분양가 14억 ~ 15.5억 선착순 분양 서귀포 영어교육도시 고급 주택 (0) | 2024.10.03 |